Bàn cầu hai khối toto CS945DNW11#XW kèm nắp rửa điện New Washlet đa chức năng, men sứ chống dính Cefiontect
Ưu điểm chính của dòng sản phẩm bàn cầu 2 khối chính là bạn có thể thay thế bệt và két nước nếu một trong hai thứ đó hỏng. Điều đó giúp tiết kiệm một số chi phí nhất định khi có tình trạng phát sinh trong quá trình sử dụng. Trong khi đó, bàn cầu vệ sinh liền khối thì không thể thay thế bộ phận riêng rẽ.

- Bộ sưu tập: LE BLANC của thương hiệu thiết bị vệ sinh TOTO
- Tên sản phẩm: Bàn cầu TOTO CS945DW11 - bàn cầu TOTO nắp điện tử Washlet TCF4911Z (220V)
- Hệ thống xả: Siphon
- Lượng nước xả: 4.8/3L
- Thiết kế: Thân dài
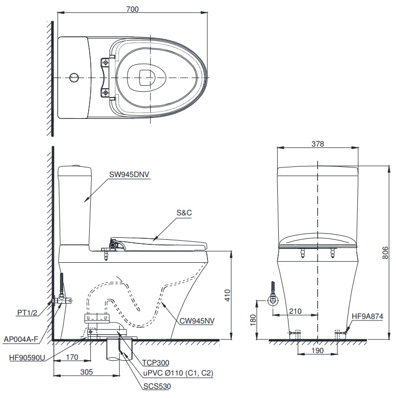
- Tâm xả: 305mm
- Kích thước: 700 x 378 x 806 mm
- Áp lực nước: 0.05MPa~0.75MPa
- Màu sắc: Màu trắng,
- Bao gồm van khóa và gioăng đế
Tính năng bàn cầu thông minh TOTO CS945DNW11
- Nắp tự động đóng/mở khi cần sử dụng
- Có chức năng sưởi ấm nắp ngồi
- Tự động phun Ewater sương làm sạch lòng bàn cầu và vòi rửa bằng cách ngăn vi khuẩn đảm bảo vệ sinh
- 02 chế độ rửa trước, rửa sau massage linh hoạt, điều chỉnh vị trí vòi rửa
- Điều chỉnh nhiệt độ sấy, nước và bệ ngồi.
- Tính năng khử mùi được kích hoạt tự động
- Có bảng điều khiển từ xa (không dây) với 2 chế độ người dùng
Bàn cầu TOTO CS945DNW11 bao gồm
- Thân cầu: C945N - Xuất xứ: Việt Nam
- Thùng nước S945DN - Xuất xứ: Việt Nam
- Nắp điện tử TCF4911Z - Xuất xứ: Malaysia
Công nghệ thiết kế bệt CS945W11 TOTO
- Thiết kế thân dài, vành kín tiện dụng cho việc vệ sinh hàng ngày
- Công nghệ CeFiONtect giúp lòng bàn cầu siêu nhẵn, hạn chế tối đa các vết bẩn, vi khuẩn
- Hệ thống xả thẳng G-MAX mạnh mẽ cuốn trôi mọi vết bẩn.
Bản vẽ bàn cầu CS945 nắp điện tử TCF4911Z

ĐANG CÓ KHUYẾN MÃI HẤP DẪN - ĐẶT HÀNG NGAY
- Cam kết hàng chính hãng 100%.
- Giá sản phẩm đã bao gồm 10% VAT theo luật thuế hiện hành. Xuất hóa đơn trong ngày.
- Miễn phí vận chuyển cho khách hàng. Xem thêm: Chính sách vận chuyển
- Thanh toán: Tiền mặt; cà thẻ Visa, Master, JCB (Miễn phí cà thẻ); trả góp 0% bằng thẻ tín dụng. Click xem chi tiết điều khoản thanh toán tại Bếp XANH
- Xem hàng tại nhà, không mua không sao.
ĐĂNG KÝ MUA HÀNG HOẶC TƯ VẤN SẢN PHẨM
SHOWROOM TRƯNG BÀY SẢN PHẨM
Tân Bình: 328 Hoàng Văn Thụ, Phường 4, Quận Tân Bình, TP. Hồ Chí Minh (Có chỗ đậu xe ô tô rộng rãi - Click xem chỗ đậu xe Quận 7: 566 Huỳnh Tấn Phát, Phường Tân Phú, Quận 7, TP. Hồ Chí Minh (Có chỗ đậu xe ô tô rộng rãi - Click xem chỗ đậu xe Tân Phú: 33 Dương Văn Dương, P. Tân Quý, Quận Tân Phú, TP. Hồ Chí Minh
Gò Vấp: 616 Phan Văn Trị, Phường 7, Quận Gò Vấp, TP. Hồ Chí Minh
Thủ Đức: Số 7 Lê Văn Việt, Phường Hiệp Phú, TP. Thủ Đức, TP. Hồ Chí Minh
Thông số kỹ thuật
Kích thước: 700L x 385W x 806H mmMàu sắc: Trắng
Hệ thống xả: Siphon
Lượng nước xả: 4.8L/3L
Thiết kế: Thân dài, thân kín
Tâm xả: 305 mm
Áp lực nước: 0.05 ~ 0.70 MPa
Nguồn điện: 220V, 50/60Hz
Lưu ý: Bao gồm van dừng