Bàn cầu TOTO 2 khối CS735DW6 nắp thông minh là mẫu bồn cầu hai khối vừa ra mắt thị trường trong năm 2020, hiện đại nhất của TOTO, sản phẩm với thiết kế gọn gàng, thanh lịch, công nghệ xả xoáy êm và khỏe, men sứ siêu chống bám bẩn và quan trọng nhất là giá thành hợp lý khiến sản phẩm nhanh chóng trở thành mẫu bồn cầu 2 khối TOTO được yêu thích nhất. Bạn có thể tham khảo bài viết chi tiết sau đây để tìm hiểu rõ hơn về mẫu bồn cầu này!

Bàn cầu TOTO 2 khối CS735DW11 nắp tự mở mang vẻ đẹp hài hòa trong sản phẩm, giúp sản phẩm phù hợp với tất cả không gian nhà vệ sinh.
Công nghệ xả xoáy Tornado êm, mạnh mẽ hiệu quả. Tornado là một dòng nước xả 360 độ có dạng giống như lốc xoáy, quét sạch hết tất cả vết bẩn ở những nó đi qua. Một điểm nổi bật nữa của công nghệ này đó là sự yên tĩnh. Dòng xả Tornado tuy lực xả mạnh, sạch sẽ nhưng vẫn đảm bảo âm thanh êm dịu thoải mái.
Hầu hết 80% các thiết bị vệ sinh hiện nay đều được làm bằng chất liệu sứ và chúng thường xuyên tiếp xúc với nước nên rất dễ bám cặn bẩn. Muốn giúp người sử dụng khắc phục tình trạng này, thương hiệu thiết bị vệ sinh cao cấp Toto đã phát minh ra ứng dụng công nghệ chống bám bẩn CeFiONtect - là tên viết tắt của cụm từ: Ceramic - sứ, Fine - Tốt đẹp, Ion - các ion hóa học và Technology – Công nghệ, chính vì vậy, công nghệ này mang ý nghĩa là công nghệ sản xuất sứ vệ sinh hàng đầu, tạo nên độ trắng sáng đẹp mắt và sử dụng công nghệ ion cho bề mặt sứ trơn nhẵn, chống bám bẩn hiệu quả. Hầu hết những thiết bị vệ sinh khi được tích hợp công nghệ này đều rất nhẵn mịn, khả năng chống khuẩn cao, có thể ngăn ngừa các mảng bám và nấm móc phát triển cực tốt. Với công nghệ này, bề mặt sứ của thiết bị vệ sinh sẽ được phủ lớp men mang tên Cefiontect siêu nhẵn, lớp men có thể ngăn không cho chất bẩn, vi khuẩn bám vào bề mặt. đặc biệt giúp cho việc xả rửa trôi chảy và dễ dàng hơn.
Một ưu điểm nữa đó chính là tăng được tuổi thọ của các sản phẩm. Những chiếc bàn cầu sử dụng công nghệ Cefiontect bền hơn và tuổi đời lâu hơn xí bệt không sử dụng công nghệ này.
Nắp điện tử TCF4911Z (W11) với các tính năng hiện đại như:
Công nghệ rửa ấm WASHLET: Hệ thống vệ sinh bằng dòng nước ấm độc đáo. Nắp washlet TOTO có vòi rửa tự động hiện đại, đa chế độ với chức năng tạo bọt khí, nước ấm, phun sương... và rửa trước, rửa sau, và massage vô cùng hiện đại, tiện lợi, phù hợp với nhu cầu của tất cả mọi người, mọi lứa tuổi.
Công nghệ Auto Functions: Sản phẩm tích hợp công nghệ đóng mở nắp bồn cầu tự động dựa vào bộ cảm biến hiện đại nhạy bén, nhận diện được người sử dụng dựa vào thân nhiệt, tự động mở nắp khi có người đến gần và đóng nắp khi không được sử dụng, giúp giữ vệ sinh cho người sử dụng cũng như cả căn phòng tắm.
Công nghệ EWATER +: Làm Ewater + từ nước máy bằng điện phân Ion Clorua. Nắp bồn cầu tự rửa TOTO có hệ thống nước xả được tạo ra từ nước máy đã qua điện phân ion Clorua thành Axit Clohydric có tác dụng khử trùng hoàn toàn vành trong bồn cầu. Quá trình sẽ được lặp lại sau mỗi 2h, giúp cho bồn cầu luôn sạch sẽ, thân thiện với môi trường.
Công nghệ Heated Seat: Sưởi ấm bệ ngồi tự động. Đây là tính năng đột phá của TOTO khiến người dùng không thể quên khi đã từng sử dụng, nhất là người già và trẻ nhỏ đối với những nơi có mùa lạnh.
Công nghệ nắp đóng êm: Sản phẩm rất dễ tháo lắp để lau chùi vệ sinh bồn cầu và sử dụng dễ dàng. Thông thường nắp đóng êm sẽ được làm bằng nhựa cứng PP, công nghệ này giúp chống bám bẩn và ăn mòn trong quá trình sử dụng. Phần thiết kế nắp cũng rất mềm mại và tinh tế, làm tôn lên vẻ đẹp của sản phẩm.
Bề mặt nước rộng giúp ngăn mùi hiệu quả
Thiết kế thân kín, vành kín, phần chân liền khiến bạn không phải tốn thời gian để cọ các ngóc ngách, tiện dụng cho việc vệ sinh hàng ngày.

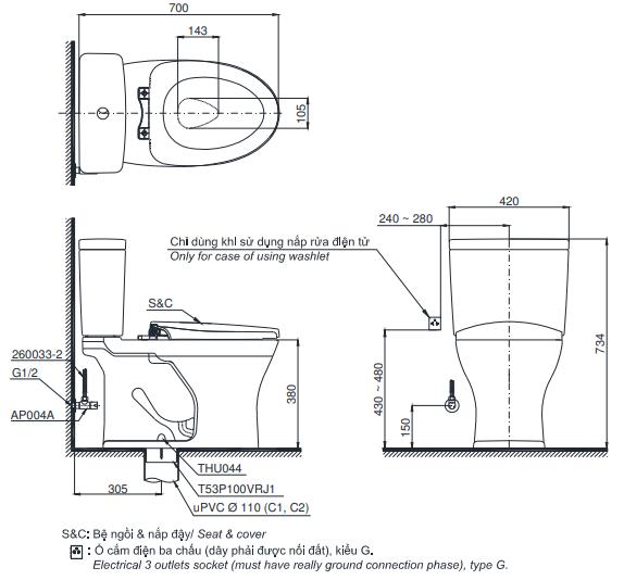
Bàn Cầu Hai Khối ToTo CS735DW11