Bàn cầu hai khối toto CS18DW6 kèm nắp rửa điện New Washlet đa chức năng, men sứ chống dính Cefiontect chống bám bẩn
Ưu điểm chính của dòng sản phẩm bồn cầu 2 khối chính là bạn có thể thay thế bệt và két nước nếu một trong hai thứ đó hỏng. Điều đó giúp tiết kiệm một số chi phí nhất định khi có tình trạng phát sinh trong quá trình sử dụng. Trong khi đó, bồn cầu vệ sinh liền khối thì không thể thay thế bộ phận riêng rẽ.
.jpg)
- Thiết kế: Thân dài
- Hệ thống xả: Siphon
- Loại xả: Nhấn đôi
- Lượng nước sử dụng: 4.8L/3.0L
- Áp lực nước sử dụnG: 0.05Mpa ~ 0.70Mpa
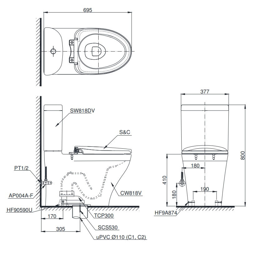
- Tâm xả: 305m
- Mặt nước đọng: 100 x 120mm
- Đường kính đường thải: ∅50mm
- Kích thước sản phẩm: 695 x 377 x 800mm (dài x rộng x cao)
- Vật liệu: Sứ vệ sinh
Đặc điểm của bàn cầu hai khối CS818DW6:
- Thiết kế sang trọng, hiện đại
- Phù hợp lắp đặt với nắp rửa điện tử WASHLET (tùy chọn)
- Bề mặt nước rộng giúp ngăn mùi hiệu quả
- Thiết kế thân kín, vành kín tiện dụng cho việc vệ sinh hàng ngày
- Công nghệ CeFiONtect giúp lòng bàn cầu siêu nhẵn, hạn chế tối đa các vết bẩn, vi khuẩn
- Công nghệ xả thẳng êm, mạnh mẽ hiệu quả.
- Thiết kế: Thân dài, điều khiển từ xa
- Áp lực nước: 0.05MPa ~ 0.75MPa
- Nguồn điện: 220V/50/60Hz 410W
- Chất liệu : Nhựa
- Màu sắc : Màu trắng
- Xuất xứ: Malaysia
Tính năng của nắp rửa điện tử NEW WASHLET TCF6531Z:
- Có chức năng sưởi ấm nắp ngồi
- Tự động phun sương làm sạch lòng bồn cầu và vòi rửa bằng cách ngăn vi khuẩn đảm bảo vệ sinh
- Hai chế độ rửa trước, rửa sau massage linh hoạt, điều chỉnh vị trí vòi rửa
- Điều chỉnh nhiệt độ sấy, nước và bệ ngồi.
- Tính năng khử mùi được kích hoạt tự động
- Có bảng điều khiển từ xa (không dây) với 2 chế độ người dùng
Bản vẽ thiết kế của bàn cầu kèm nắp rửa điện tử NEW WASHLET TCF6531Z (220V):

ĐANG CÓ KHUYẾN MÃI HẤP DẪN - ĐẶT HÀNG NGAY
- Cam kết hàng chính hãng 100%.
- Giá sản phẩm đã bao gồm 10% VAT theo luật thuế hiện hành. Xuất hóa đơn trong ngày.
- Miễn phí vận chuyển cho khách hàng. Xem thêm: Chính sách vận chuyển
- Thanh toán: Tiền mặt; cà thẻ Visa, Master, JCB (Miễn phí cà thẻ); trả góp 0% bằng thẻ tín dụng. Click xem chi tiết điều khoản thanh toán tại Bếp XANH
- Xem hàng tại nhà, không mua không sao.
ĐĂNG KÝ MUA HÀNG HOẶC TƯ VẤN SẢN PHẨM
SHOWROOM TRƯNG BÀY SẢN PHẨM
Tân Bình: 328 Hoàng Văn Thụ, Phường 4, Quận Tân Bình, TP. Hồ Chí Minh (Có chỗ đậu xe ô tô rộng rãi - Click xem chỗ đậu xe Quận 7: 566 Huỳnh Tấn Phát, Phường Tân Phú, Quận 7, TP. Hồ Chí Minh (Có chỗ đậu xe ô tô rộng rãi - Click xem chỗ đậu xe Tân Phú: 33 Dương Văn Dương, P. Tân Quý, Quận Tân Phú, TP. Hồ Chí Minh
Gò Vấp: 616 Phan Văn Trị, Phường 7, Quận Gò Vấp, TP. Hồ Chí Minh
Thủ Đức: Số 7 Lê Văn Việt, Phường Hiệp Phú, TP. Thủ Đức, TP. Hồ Chí Minh
Thông số kỹ thuật
Kích thước: 695D x 377W x 800H mmMàu sắc: Trắng
Hệ thống xả: Siphon
Lượng nước xả: 4.8L/3L
Thiết kế: Thân dài, thân kín
Tâm xả: 305 mm
Áp lực nước: 0.05 ~ 0.70 MPa
Nguồn điện: 220V, 50/60Hz
Lưu ý: Bao gồm van dừng