Bàn cầu hai khối Toto CS986GW7 kèm nắp rửa điện New Washlet đa chức năng, men sứ chống dính Cefiontect
Ưu điểm chính của dòng sản phẩm bồn cầu 2 khối chính là bạn có thể thay thế bệt và két nước nếu một trong hai thứ đó hỏng. Điều đó giúp tiết kiệm một số chi phí nhất định khi có tình trạng phát sinh trong quá trình sử dụng. Trong khi đó, bồn cầu vệ sinh liền khối thì không thể thay thế bộ phận riêng rẽ.

Thông tin bồn cầu TOTO CS986GW7 nắp rửa điện tử
- Bàn cầu của thương hiệu thiết bị vệ sinh TOTO
- Tên sản phẩm: Bệt vệ sinh TOTO 2 khối CS986W7 nắp rửa điện tử Washlet TCF6631A
- Men sứ chống dính CeFiONtect
- Hệ thống xả Tornado hiệu quả, tiết kiệm nước, xả gạt 2 chế độ (4.5L/3L)
- Thân dài, thân kín
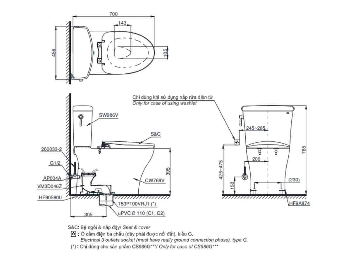
- Tâm xả: 305mm (Bao gồm van dừng)
- Áp lực nước sử dụng: 0.05 ~ 0.70 (Mpa)
- Mặt nước đọng: 143x105 (mm)
- Đường kính đường thải: Ø63 (mm)
- Kích thước sản phẩm: L700 x W456 x H765 (mm)
Tính năng bàn cầu thông minh CS986GW7#XW TOTO
- Có chức năng sưởi ấm nắp ngồi
- Tự động phun sương làm sạch lòng bồn cầu và vòi rửa bằng cách ngăn vi khuẩn đảm bảo vệ sinh
- 02 chế độ rửa trước, rửa sau massage linh hoạt, điều chỉnh vị trí vòi rửa
- Điều chỉnh nhiệt độ sấy, nước và bệ ngồi.
- Tính năng khử mùi được kích hoạt tự động
- Có bảng điều khiển bên cạnh nắp điện tử
Công nghệ thiết kế bệt TOTO CS986G W7
- Thiết kế thân kín, vành kín tiện dụng cho việc vệ sinh hàng ngày
- Công nghệ CeFiONtect giúp lòng bàn cầu siêu nhẵn, hạn chế tối đa các vết bẩn, vi khuẩn
- Hệ thống xả Tornado êm, mạnh mẽ hiệu quả
Bồn cầu TOTO CS 986 GW7 gồm có
- Thân cầu: C769
- Két nước: S986G
- Nắp rửa rửa điện tử: TCF6631A
Bản vẽ bồn cầu CS 986W7 nắp điện tử TCF6631A TOTO
Thông số kỹ thuật
Kích thước: 700D x 456W x 765H mm
Màu sắc: Trắng
Hệ thống xả: Tornado
Lượng nước xả: 4.5L/3L
Thiết kế: Thân dài, thân kín
Tâm xả: 305 mm
Áp lực nước: 0.05 ~ 0.70 MPa
Nguồn điện: 220V, 50/60Hz
Lưu ý: Bao gồm bích nối sàn, van dừng