Bàn cầu hai khối toto CS986GE4 - nắp đóng êm kèm vòi rửa lạnh TCW1211A
Ưu điểm chính của dòng sản phẩm bồn cầu 2 khối chính là bạn có thể thay thế bệt và két nước nếu một trong hai thứ đó hỏng. Điều đó giúp tiết kiệm một số chi phí nhất định khi có tình trạng phát sinh trong quá trình sử dụng. Trong khi đó, bồn cầu vệ sinh liền khối thì không thể thay thế bộ phận riêng rẽ.

Thông tin cơ bản bồn cầu TOTO CS986GE4 nắp rửa cơ
- Bàn cầu của thương hiệu thiết bị vệ sinh TOTO
- Tên sản phẩm: Bệt vệ sinh TOTO 2 khối CS986GE4 nắp rửa cơ TCW1211A
- Men sứ chống dính CeFiONtect
- Hệ thống xả Tornado hiệu quả, tiết kiệm nước, xả gạt 2 chế độ (4.5L/3L)
- Thân dài, thân kín
- Tâm xả: 305mm (Bao gồm van dừng)
- Áp lực nước sử dụng: 0.05 ~ 0.70 (Mpa)
- Mặt nước đọng: 143x105 (mm)
- Đường kính đường thải: Ø63 (mm)
- Kích thước sản phẩm: L700 x W456 x H765 (mm)
Tính năng bàn cầu tự rửa CS986GE4#XW TOTO
- Có 2 chế độ rửa trước và rửa sau
- Nắp đóng êm kèm vòi rửa nước lạnh Eco-washer
- Thiết kế bồn cầu thân kín, vành kín tiện dụng cho việc vệ sinh hàng ngày
- Bề mặt nước rộng giúp ngăn mùi hiệu quả
- Công nghệ CeFiONtect giúp lòng bàn cầu siêu nhẵn, hạn chế tối đa các vết bẩn, vi khuẩn
- Công nghệ xả Tornado êm, mạnh mẽ hiệu quả
- Không cần điện
- Đơn giản, dể sử dụng
Bồn cầu TOTO CS 986E4 gồm có
- Thân cầu: C769
- Két nước: S986G
- Nắp rửa cơ: TCW1211A (E4)
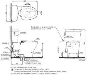
Bản vẽ bồn cầu CS986 nắp rửa cơ TCW1211A TOTO
Thông số kỹ thuật
Kích thước: 700D x 456W x 765H mm
Màu sắc: Trắng
Hệ thống xả: Tornado
Lượng nước xả: 4.5L/3L
Thiết kế: Thân dài, thân kín
Tâm xả: 305 mm
Áp lực nước: 0.05 ~ 0.70 MPa
Lưu ý: Bao gồm bích nối sàn, van dừng