Bàn cầu hai khối toto CS838DE2 - nắp đóng êm kèm vòi rửa lạnh TCW07S
Ưu điểm chính của dòng sản phẩm bồn cầu 2 khối chính là bạn có thể thay thế bệt và két nước nếu một trong hai thứ đó hỏng. Điều đó giúp tiết kiệm một số chi phí nhất định khi có tình trạng phát sinh trong quá trình sử dụng. Trong khi đó, bồn cầu vệ sinh liền khối thì không thể thay thế bộ phận riêng rẽ.

Thông tin bồn cầu TOTO CS838DE2 nắp rửa cơ
- Tên sản phẩm: Bồn cầu TOTO hai khối nắp rửa cơ TCW07S
- Mã sản phẩm: CS838DE2#XW
- Thiết kế : Thân dài
- Hệ thống xả : Tornado
- Loại xả: 2 nút nhấn 4.5/ 3.0 (L)
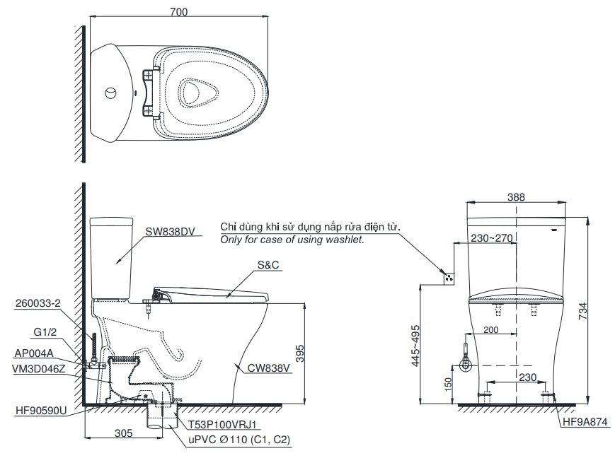
- Tâm xả: 305 (mm)
- Kích thước (DxRxC): 700 x 388 x 734 mm
- Mặt nước đọng: 143 x 105 (mm)
- Đường kính đường thải: ∅63 (mm)
- Màu sắc: Màu trắng
- Xuất xứ: Việt Nam
Tính năng bàn cầu tự rửa CS838 E2 TOTO
- Bồn cầu nắp rửa cơ C838 được thiết kế sang trọng
- Nắp đóng êm kèm vòi rửa nước lạnh Eco-washer
- Phù hợp lắp đặt với nắp rửa điện tử WASHLET (tùy chọn)
- Thiết kế bồn cầu thân kín, vành kín tiện dụng cho việc vệ sinh hàng ngày
- Bề mặt nước rộng giúp ngăn mùi hiệu quả
- Công nghệ CeFiONtect giúp lòng bàn cầu siêu nhẵn, hạn chế tối đa các vết bẩn, vi khuẩn
- Công nghệ xả Tornado êm, mạnh mẽ hiệu quả
- Không cần điện
- Đơn giản, dể sử dụng
- Dể dàng lắp đặt với cả bồn cầu thân dài và thân tròn
Xí bệt TOTO CS838 DE2 gồm có
- Thân cầu: C838 - Xuất xứ: Việt Nam
- Két nước: S838D - Xuất xứ: Việt Nam
- Nắp rửa cơ TCW07S (E2) - Xuất xứ: Inđônêxia
- Bộ cố định: HF90590U
- Mũ chụp: HF9A874
- Van dừng: AP004A
- Dây cấp: 260033-2
- Ống nối sàn: VM3D046Z
- Đệm thoát sàn: T53P100VRJ1
Bản vẽ bồn cầu nắp rửa cơ TOTO CS838E2

Thông số kỹ thuật
Kích thước: 700D x 388W x 734H mm
Màu sắc: Trắng
Hệ thống xả: Tornado
Lượng nước xả: 4.5L/3L
Thiết kế: Thân dài, thân kín
Tâm xả: 305 mm
Áp lực nước: 0.05 ~ 0.70 MPa
Lưu ý: Bao gồm bích nối sàn, van dừng