Bàn cầu hai khối toto CS735DE2 - nắp đóng êm kèm vòi rửa lạnh TCW07S, men sứ chống dính, chống bám bẩn Cefiontect
Ưu điểm chính của dòng sản phẩm bồn cầu 2 khối chính là bạn có thể thay thế bệt và két nước nếu một trong hai thứ đó hỏng. Điều đó giúp tiết kiệm một số chi phí nhất định khi có tình trạng phát sinh trong quá trình sử dụng. Trong khi đó, bồn cầu vệ sinh liền khối thì không thể thay thế bộ phận riêng rẽ.

Thông tin cơ bản bồn cầu TOTO CS735DE2 nắp rửa cơ
- Mã sản phẩm: CS735DE2
- Thiết kế : Thân dài
- Hệ thống xả : Tornado
- Loại xả: 2 nút nhấn
- Bàn cầu: 2 khối
- Nắp rửa cơ
- Lượng nước sử dụng: 4.5/ 3.0 (L)
- Áp lực nước sử dụng: 0.05 ~ 0.70 (Mpa)
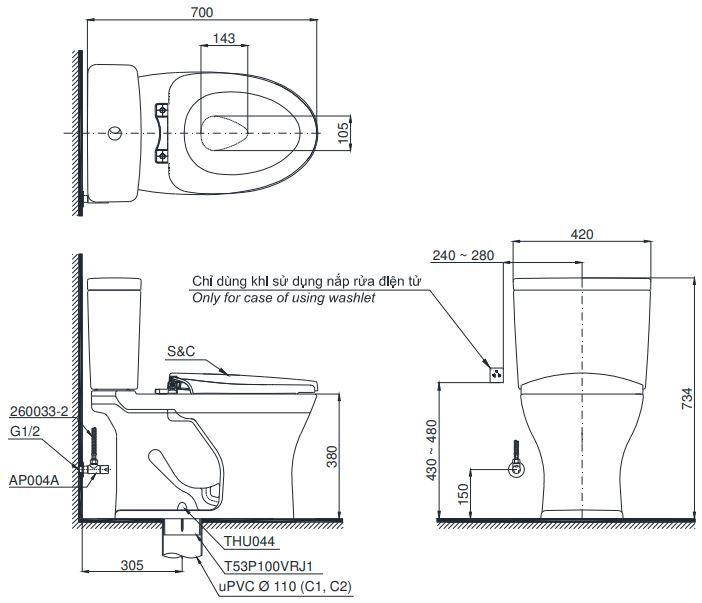
- Tâm xả: 305 (mm)
- Kích thước (DxRxC): 700 x 420 x 734 mm
- Màu sắc: Màu trắng
- Bao gồm van khóa và gioăng đế
- Xuất xứ: Việt Nam
Tính năng bàn cầu tự rửa CS735D E2 TOTO
- Bồn cầu nắp rửa cơ CS735DE2 được thiết kế sang trọng
- Nắp đóng êm kèm vòi rửa nước lạnh Eco-washer
- Phù hợp lắp đặt với nắp rửa điện tử WASHLET (tùy chọn)
- Thiết kế bồn cầu thân kín, vành kín tiện dụng cho việc vệ sinh hàng ngày
- Bề mặt nước rộng giúp ngăn mùi hiệu quả
- Công nghệ CeFiONtect giúp lòng bàn cầu siêu nhẵn, hạn chế tối đa các vết bẩn, vi khuẩn
- Công nghệ xả Tornado êm, mạnh mẽ hiệu quả
- Không cần điện
- Đơn giản, dể sử dụng
- Dể dàng lắp đặt với cả bồn cầu thân dài và thân tròn
Bồn cầu TOTO CS735DE2 gồm có
Bản vẽ bồn cầu C735 nắp rửa cơ TCW07S TOTO

Thông số kỹ thuật
Kích thước: 700D x 420W x 734H mm
Màu sắc: Trắng
Hệ thống xả: Tornado
Lượng nước xả: 4.8L/3L
Thiết kế: Thân dài, bán kín
Tâm xả: 305 mm
Áp lực nước: 0.05 ~ 0.70 MPa
Lưu ý: Bao gồm van dừng