Bàn cầu hai khối Toto CS838DT - kèm nắp đóng êm TC600VS, Sử dụng men chống dính, chống bám bẩn Cefiontect và hệ thống xả xoáy Tornado siêu mạnh siêu êm
Ưu điểm chính của dòng sản phẩm bồn cầu 2 khối chính là bạn có thể thay thế bệt và két nước nếu một trong hai thứ đó hỏng. Điều đó giúp tiết kiệm một số chi phí nhất định khi có tình trạng phát sinh trong quá trình sử dụng. Trong khi đó, bồn cầu vệ sinh liền khối thì không thể thay thế bộ phận riêng rẽ.
Bàn cầu ToTo luôn được đánh giá cao về chất lượng, kiểu dáng, nước men sáng bóng, xả nước êm ái. Ngay từ khi đặt chân vào thị trường Việt Nam có 100% vốn đầu tư nước ngoài, ToTo đã tập trung vào dòng sản phẩm cao cấp với sự nổi trội ở công nghệ thay đổi kết cấu bề mặt với lớp men siêu nhẵn ngăn vi khuẩn và nấm mốc bám vào bề mặt. Bên cạnh đó các sản phẩm bàn cầu ToTo luôn tiện lợi, thân thiện môi trường và tiết kiệm điện, nước cho hộ gia đình.
Dưới đây là một số thông tin về Bàn cầu hai khối ToTo CS320DRT2#W. Đây là sản phẩm sở hữu nhiều tính năng nổi bật, được nhiều người dùng ưa chuộng hiện nay. - Thiết kế sang trọng, hiện đại
- Nắp đóng êm
- Tiết kiệm nước với chế độ xả 4.8L/3L
- Công nghệ CeFiONtect giúp lòng bàn cầu siêu nhẵn, hạn chế tối đa các vết bẩn, vi khuẩn
Công nghệ men CeFiONtect
TOTO đã tạo ra một bước đột phá về công nghệ mới trong lĩnh vực sứ bằng sự thay đổi kết cấu bề mặt. Với công nghệ này, bề mặt sứ được phủ lớp men siêu nhẵn, lớp men này ngăn không cho chất bẩn, vi khuẩn hay nấm mốc bám vào bề mặt. Sự kết hợp của những đặc điểm nổi bật này đã tạo ra một bề mặt không đổi màu cho những sản phẩm được tráng men trong suốt thời gian sử dụng.
TOTO đặt tên cho công nghệ này là CeFiONtect, là sự kết hợp của 4 từ: Sứ (ceramic), Tốt đẹp (fine), Ion và Công nghệ (technology).
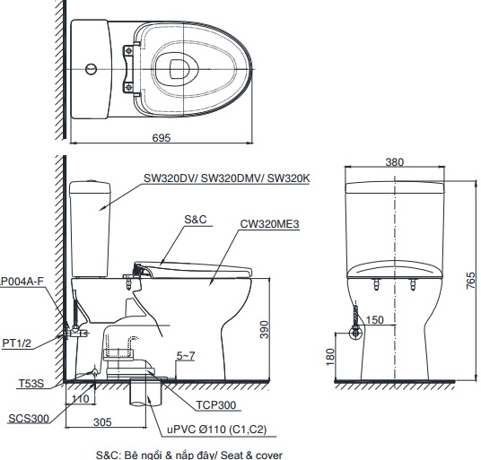
Bản vẽ kỹ thuật Bàn Cầu Hai Khối ToTo CS320DRT2#W

ĐANG CÓ KHUYẾN MÃI HẤP DẪN - ĐẶT HÀNG NGAY
- Cam kết hàng chính hãng 100%.
- Giá sản phẩm đã bao gồm 10% VAT theo luật thuế hiện hành. Xuất hóa đơn trong ngày.
- Miễn phí vận chuyển cho khách hàng. Xem thêm: Chính sách vận chuyển
- Thanh toán: Tiền mặt; cà thẻ Visa, Master, JCB (Miễn phí cà thẻ); trả góp 0% bằng thẻ tín dụng. Click xem chi tiết điều khoản thanh toán tại Bếp XANH
- Xem hàng tại nhà, không mua không sao.
ĐĂNG KÝ MUA HÀNG HOẶC TƯ VẤN SẢN PHẨM
SHOWROOM TRƯNG BÀY SẢN PHẨM
Tân Bình: 328 Hoàng Văn Thụ, Phường 4, Quận Tân Bình, TP. Hồ Chí Minh (Có chỗ đậu xe ô tô rộng rãi - Click xem chỗ đậu xe Quận 7: 566 Huỳnh Tấn Phát, Phường Tân Phú, Quận 7, TP. Hồ Chí Minh (Có chỗ đậu xe ô tô rộng rãi - Click xem chỗ đậu xe Tân Phú: 33 Dương Văn Dương, P. Tân Quý, Quận Tân Phú, TP. Hồ Chí Minh
Gò Vấp: 616 Phan Văn Trị, Phường 7, Quận Gò Vấp, TP. Hồ Chí Minh
Thủ Đức: Số 7 Lê Văn Việt, Phường Hiệp Phú, TP. Thủ Đức, TP. Hồ Chí Minh
Thông số kỹ thuật
Kích thước: 700D x 388W x 734H mm
Màu sắc: Trắng
Hệ thống xả: Tornado
Lượng nước xả: 4.5L/3L
Thiết kế: Thân dài, thân kín
Tâm xả: 305 mm
Áp lực nước: 0.05 ~ 0.70 MPa
Lưu ý: Bao gồm bích nối sàn, van dừng