Bàn cầu hai khối Toto CS735DT3 - kèm nắp đóng êm TC600VS, Sử dụng men chống dính, chống bám bẩn Cefiontect và hệ thống xả xoáy Tornado siêu mạnh siêu êm
Ưu điểm chính của dòng sản phẩm bồn cầu 2 khối chính là bạn có thể thay thế bệt và két nước nếu một trong hai thứ đó hỏng. Điều đó giúp tiết kiệm một số chi phí nhất định khi có tình trạng phát sinh trong quá trình sử dụng. Trong khi đó, bồn cầu vệ sinh liền khối thì không thể thay thế bộ phận riêng rẽ.

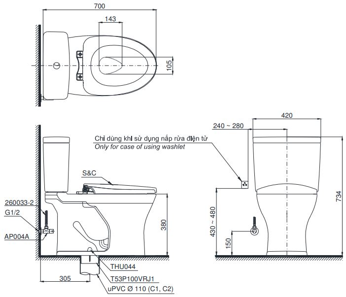
Thông tin cơ bản bồn cầu TOTO CS735DT3
- Mã sản phẩm: CS735DT3
- Thiết kế: Thân dài
- Loại bồn cầu: 2 khối
- Hệ thống xả: Tornado
- Loại xả: 2 nhấn
- Nắp rơi êm
- Lượng nước sử dụng: 4.8/ 3 L
- Áp lực nước sử dụng: 0.05 ~ 0.70 (Mpa)
- Tâm xả: 305 (mm)
- Kích thước (DxRxC): 700 x 420 x 734 mm
- Xuất xứ: Việt Nam
Bồn cầu TOTO CS735DT3 gồm có
- Thân cầu: C735
Két nước: S735D - Nắp bồn cầu TC385VS
Tính năng bàn cầu TOTO CS735D T3
- Bệt 735 thiết kế sang trọng
- Nắp đóng êm
- Phù hợp lắp đặt với nắp rửa điện tử WASHLET (tùy chọn)
- Bề mặt nước rộng giúp ngăn mùi hiệu quả
- Thiết kế thân kín, vành kín tiện dụng cho việc vệ sinh hàng ngày
- Công nghệ CeFiONtect giúp lòng bàn cầu siêu nhẵn, hạn chế tối đa các vết bẩn, vi khuẩn
- Công nghệ xả thẳng Tornado êm, mạnh mẽ hiệu quả
Bản vẽ xí bệt Toto nắp êm TC385VS

Thông số kỹ thuật
Kích thước: 700D x 420W x 734H mm
Màu sắc: Trắng
Hệ thống xả: Tornado
Lượng nước xả: 4.8L/3L
Thiết kế: Thân dài, thân hở
Tâm xả: 305 mm
Áp lực nước: 0.05 ~ 0.70 MPa
Lưu ý: Bao gồm van dừng